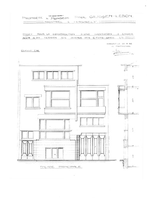
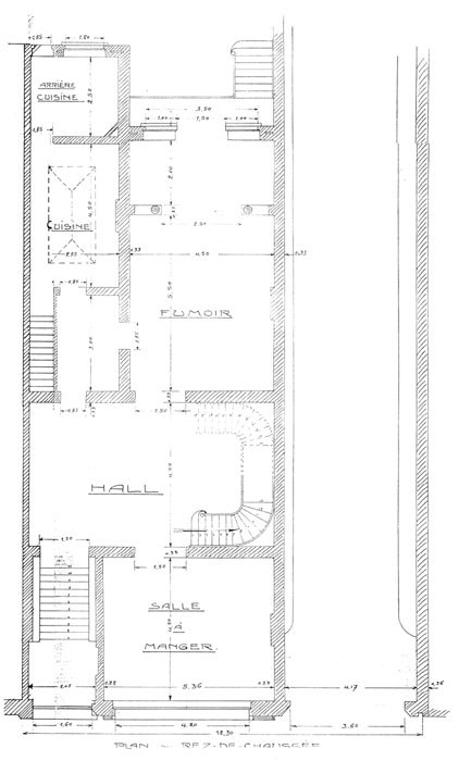
QUICKTIME SLIDESHOW


HUIS HOSTE VROEGER

© KUL

© Sint-Lukasarchief

© Sint-Lukasarchief

© Sint-Lukasarchief

© Sint-Lukasarchief

© Sint-Lukasarchief
 


HUIS HOSTE NU